空分本質安全化設計
空分設備中存在在著包括爆炸,燃燒,窒息,低溫等等許多危險,具體地如冷箱泄漏倒塌、主冷凝蒸發器燃爆、氧氣管道燃爆、氮氣窒息,低溫冷脆,低溫凍傷等,而這些危險存在于空分各個系統中, 特別是冷箱管道和結構,冷箱精餾系統,液體后備系統等等;這些危險分布在空分生命周期中的各個階段,如設計,制造,檢驗,安裝,運行等等。
空分設備中的這些危險,有的可能性大很常見,如低溫凍傷;有的后果非常嚴重往往造成災難性事 故如近年來發生的“7.19”義馬事故。
針對這些危險,空分設備的設計需要采取相應的安全設計措施??辗衷O備的安全設計,重點不能放在事故發生后的應急措施上或者被動防范上,而首先要從源頭上減少事故發生的概率以及嚴重性,即在設計階段,就要依據空分工藝系統的特性,設計出具有固有或本質安全特征的生產過程,以保障空分生產過程穩定運行、不易發生事故。
歐盟在塞維索II指令的指導文件中有提到“需借由固有安全技術的應用,盡可能的避免或降低危險的發生”。美國化學工程師協會發布了自己的本質更安全技術“IST” 定義:本質上更安全技術 (IST),也稱為本質上更安全設計 (ISD),永久消除或減少危險,以避免或減少事故的后果。
因此空分設備系統設計和管理是以風險控制為基準,采用本質安全化的思路,減少或消除固有危險,從降低危險的可能性和嚴重性二個維度進行設計與控制,將空分設備的風險主動控制在低風險綠色區域 ,如以下的風險控制矩陣所示(圖1)。

由于空分設備有許多系統,本文著重探討冷箱和平底儲罐本質安全化設計。
空分冷箱的主要危險是主冷爆炸和冷箱噴砂及倒塌,它們將引起災難性事故。主冷爆炸與可燃雜質風險相關聯;而冷箱噴砂倒塌與管道柔性設備強度,冷箱密封氣,檢修扒砂程序和冷箱鋼結構設計計算關聯,并且與可燃雜質也相關。因此探討空分冷箱的危險,需要探討可燃雜質風險控制和管道柔性設備強度等風險控制。
(一)可燃雜質風險控制
探討空分設備可燃雜質風險,也就是探討碳氫化合物的風險。
我們首先從氧化劑、可燃物、激發能量的燃燒3要素說起??辗衷O備的產品氧氣就是氧化劑,它幫助燃燒并且加速燃燒,世界上幾乎所有物質都可以在氧氣中燃燒,并且火焰在液氧中的傳播速度比氣氧快,比空氣中更是快得多;可燃物主要指可燃雜質,如碳氫化合物以及鋁翅片等;激發能量是個值得研究的問題。
空分設備中碳氫化合物的燃爆主要發生在冷凝蒸發器和主換熱器。冷箱內冷凝蒸發器和主換熱器的 燃爆過程和危險消除方法如圖2所示

針對這個燃爆過程,風險控制的手段就是采取相應的防范措施阻止這個過程內其中一個環節的發生。對于初始點火能量,有許多推測和假設,至今為止沒有定論,因此沒有相應有效的防范措施。對于點燃鋁翅片,目前所有的防范措施都是基于同一個目標,就是防止碳氫化合物在冷凝蒸發器內沉積濃縮,使其含量不超過臨界值,從而防止鋁被點燃。對于點燃污染的鄰近通道,由于鋁在液氧中燃燒的后果太嚴重,沒有經濟、有效的被動防范措施。
空分設備碳氫化合物風險控制或危險消除,應當系統地從各個方面進行控制(如圖2所示),主要包括:技術方面的措施,如設計與制造、主換熱器設計;蒸發器運行控制方面的措施,如全浸操作控制與防濃縮排液控制;安裝調試方面的措施;進入冷箱雜質的監測;加溫系統的設計;以及其他等等。
由于篇幅有限,下面僅探討進入冷箱雜質監測和蒸發器的運行控制包括全浸操作控制與防濃縮排液控制。
1.進入冷箱雜質監測控制
空分中的可燃雜質是碳氫化合物,主要來自大氣,包括如甲烷,乙炔,丙烷等等,另外還有危險的堵塞性氣體如二氧化碳,氧化亞氮等等,因此本質安全化設計應當主動監測和控制進入空分冷箱內 的這些大氣雜質。
空分中的大氣雜質一般最后都聚集在主冷凝蒸發器中,浴式液氧蒸發器中碳氫化合物等雜質含量最大允許控制值可以參考深度冷凍法生產氧氣及相關氣體安全技術規程等文獻。
內壓縮流程中,液氧在主換熱器中蒸發,碳氫化合物的沉積與主換熱器液氧蒸發壓力有關,因此碳 氫化合物等雜質含量的控制也與主換熱器的壓力相關:氧化亞氮含量應被控制在(3~30)×10-6之間 ,總碳含量(不包括甲烷)應被控制在(1~12)×10-6之間,丙烷含量應被控制在(0.3~4)×10-6。文獻要求空分液氧中總碳含量<100×10-6,不夠全面,值得商榷或需要修訂;而且由于理論上乙炔被分子篩吸附器100%吸附,并且乙炔在液氧中的溶解度是(4~6)×10-6,因此,文獻[2]要求空分液氧中乙炔含量<0.1×10-6也是值得探討或需要修訂。
2.蒸發器的運行控制
可燃雜質的濃縮或積聚程度,隨液氧的蒸發越來越嚴重,到了液氧干蒸發時達到最高值,如非常低的蒸發器液位,存在液氧盲端死角點等。另外,通道被固體雜質(如二氧化碳固體或氧化亞氮沉積物)或氣溶膠或其他雜質(如珠光砂)等堵塞時,會使可燃雜質的濃縮加劇。
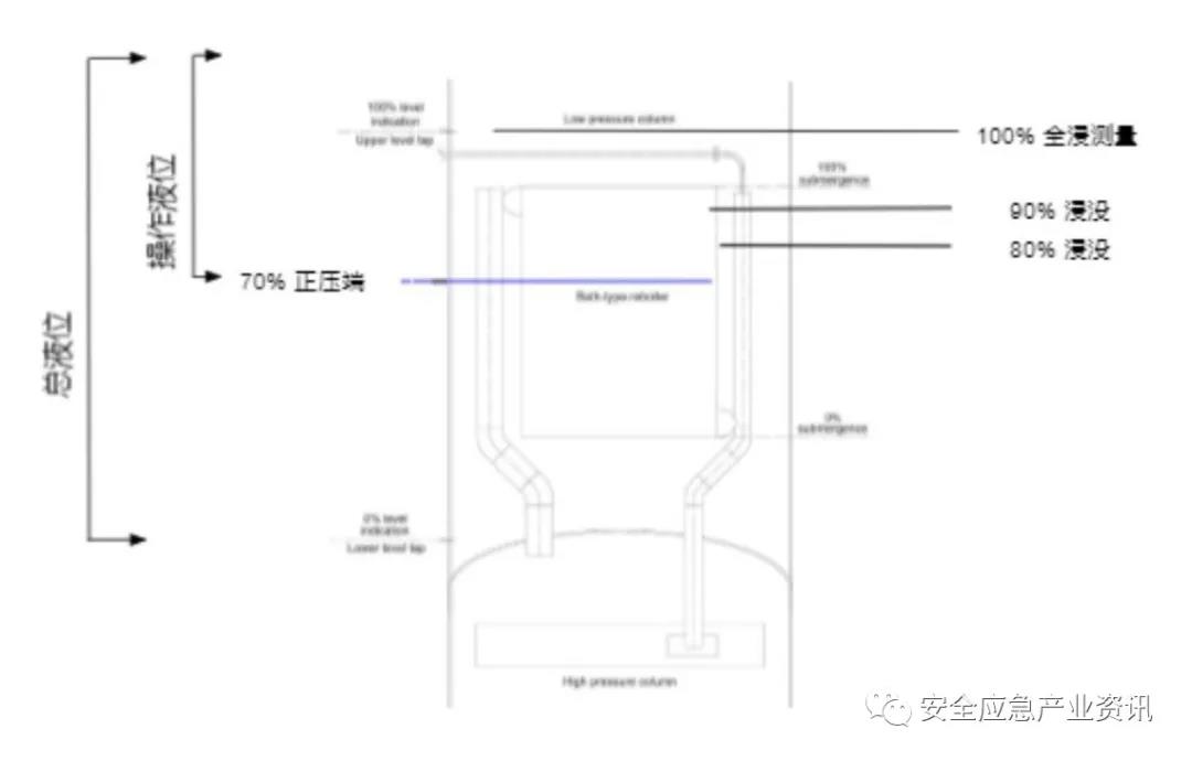
保證蒸發器安全運行的主要措施是全浸操作控制與防濃縮排液控制,而全浸操作是最重要的安全措施。100%主冷板式浸沒操作優先于其他任何安全措施,應當優先于液體產品抽取和防濃縮排液控制。
所以,應當設置防低液位安全保護回路。對液氧蒸發器,需要設置2個獨立的液位測量回路(如圖3所示),即獨立的測量儀表管加上專用邏輯控制器和2個獨立的執行機構;對富液氧蒸發器,安全保護回路僅需要1個液位測量儀表管、常規DCS控制和1個執行機構;而上層蒸發器僅僅需要設置安全報警功能即可。

安全措施中必須限制濃縮倍率以避免蒸發器中雜質濃度過高。濃縮倍率是相關蒸發器池中不完全揮發的雜質濃度與其在進入冷箱內空氣中的濃度之比。在浴式蒸發器中,液氧排放率越高,濃縮倍率就越低,最大濃縮倍率由最小液氧排放流量確定。
對于濃縮倍率的計算應當考慮所有相關管線,即包括富液氧蒸發的每個位置和所有可能的操作模式。應當采用相應的安全保護回路,來防止防濃縮排液量過低。
(二)冷箱倒塌風險控制
冷箱鋼結構噴砂倒塌產生的原因有很多,存在于空分設備的各個階段,如設計,建造,運行,檢維修等等,它們又互相纏繞,使得問題復雜多變,冷箱倒塌原因分析見圖4。

冷箱結構倒塌也就是冷箱鋼構梁柱失效,引起的主要原因有基礎傾斜,內部設備倒塌,碳鋼冷脆,珠光砂產生的砂爆,管道設備泄漏引起的超壓以及腐蝕。
無論從安全性或可靠性角度,內部設備倒塌是一個非常嚴重的事故,因此必須徹底杜絕,法液空的本質安全設計原則是所有冷箱內主要設備必須直接支承在混凝土基礎上或不銹鋼支架上,除非通過專門的風險分析,使得它們由于冷脆而倒塌的可能性為零。
冷箱基礎傾斜,碳鋼構件冷脆,噴砂或砂爆,超壓都直接或間接都與冷箱內管道設備泄漏有關,冷箱內管道設備泄漏是引起空分冷箱風險的主要原因,它是低溫,窒息,富氧危險的主要來源,其中造成這個問題的環節有設計,建造,運行,維修或其他損壞。
針對泄漏危險,本質化更安全設計方法首先是管道設備的強度計算以及相應的材質選擇問題,另外就是設置相應的泄漏檢測儀表,監測冷箱內部運行情況,預報不正常工況,提前采取行動措施消除危險。
設計計算選材是指正確地進行設計工作,包括冷箱結構和管道柔性應力計算。鋼結構計算應當根據鋼結構設計規范進行恒載,活載以及偶然載荷的計算校核。管道設備的強度計算或柔性設計計算,
具體要求是包括幾何尺寸的正確性,管道支架位置和形式,荷載的假設合理性(包括各種壓力,溫度,流量工況),以及應力校核,設備管口推力校核的正確性。
材料選擇是根據各個管道設備和支架的設計應力和工況,選擇合適的材料,一般從本質安全化角度,冷箱內設備管道應當采用低溫材料,并且冷箱內管道盡量少用鋁合金,因為鋁合金強度差或硬度 低更容易斷裂破壞(如更容易產生珠光砂氣割或氣鋸現象),另外鋁合金更容易與氧燃燒反應(點燃溫度低,燃燒熱高)。
根據有關研究和文獻,珠光砂結冰后的靜載重量可以達到干燥時的10倍以上,不均勻珠光砂流動的動荷載將接近20倍左右,而低溫液體突然蒸發產生的砂爆壓將近高達數百倍以上,本質化更安全設計措施是監測冷箱內部運行情況,提前采取行動防止這些事故的發生,而采用被動的防范措施,理論上或經濟上都是不可行的。
通過設置冷箱內部壓力監測,氣體成分變化監測,溫度監測,隨時了解冷箱內部管道設備泄漏情況,一旦發現不正常情況或事故苗頭,立即采取相應的措施,防止事件惡化和事故發生。
在監測參數正常的情況下,保證冷箱內干燥是非常重要的本質安全化措施,它防止空氣和潮氣侵入冷箱,避免造成空氣低溫冷凝成富氧低溫液體和珠光砂結冰,前者可能使得碳鋼冷脆,后者使得靜載一次應力增加并使得管道無法自由活動(二次應力增大)。
運行檢維修程序也是非常重要的本質安全化的重要手段,包括平常的巡檢程序和珠光砂充填扒砂程序,用來防止由于腐蝕,局部結冰或扒砂引起的事故。
空分工程上一般采用低溫平底儲罐儲存大于400立方米的大量低溫液體,如液氧、液氮、液氬,而200噸以上液氧根據國家標準GB18218-2018《危險化學品重大危險源辨識》屬于重大危險源。
平底罐倒塌或大量低溫液氧,液氮液體等泄漏及泄漏后產生的相應低溫云霧將產生許多重大危害,它們分別為:人員的低溫凍傷,碳鋼結構的冷脆,由于霧或能見度降低引起的交通等事故,液氮及液氬缺氧云霧引起的窒息和液氧富氧云霧引起的火災,行業內也有許多重大事故報道,比如今年最近發生的某公司“5.6”液氮平底罐事故以及“7.19”義馬事故。
因此分析低溫平底儲罐的失效模式,針對其失效機理,采取相應防護措施,對低溫平底儲罐的本質安全化設計是非常重要的。
低溫液體平底儲罐的主要部件及典型結構如圖5所示。
它的主要危險是低溫液體大量泄漏,引起的原因是內筒破裂、液體管道破裂或倒塌,其失效模式如 圖6所示

根據圖6的主要失效模式,下面對低溫液體平底儲罐的失效機理及防護措施進行分析研究
(一)內容器本質安全化
1. 內容器的失效機理
內壓使內容器產生向上的抬升力,當抬升力超過地腳錨帶的極限時,可能產生失效,其后果是內容器地腳徹底斷裂,底板撕裂,筒體被推向上,大量液體隨之泄漏(如圖3所示)

2.本質安全化措施
第一,內容器本質安全化設計。采用奧氏體不銹鋼材料建造內容器,保證它的低溫韌性;結構上采用筒體與壓環全焊透,自支撐式拱形頂蓋。罐頂設計成先于其他部分破裂的薄弱點——易碎罐頂,采用爆破片實現所謂的薄弱易碎罐頂。石墨爆破片安裝于內容器頂部人孔。按照以上設計原則,根據潛在影響后果,注重強弱順序,按可能的后果及其試驗方法,對不同部件采用不同的安全系數,在各個壓力段范圍內提供確實的安全余量,如操作壓力范圍、安全泄放裝置壓力范圍及相應機械強度極限的壓力范圍,所有部件的設計參數均以爆破片的爆破壓力作為基準。
第二,地腳系統本質安全化設計。內容器地腳采用錨帶錨板結構;錨帶用與筒體相同材料的標準扁鋼制成;地腳錨帶預埋于儲罐混凝土底板內,錨帶均勻分布于內容器圓周上并且每個埋地處用鋼筋 加強?;炷恋装逯械耐搀w地腳錨帶和拱頂與筒體的連接部件均應當認為是壓力容器的一部分。也就是說,地腳錨帶也應當按容器設計、制造規程進行壓力試驗,確保建造質量。在固定筒體之前,根據需要,對一定數量的地腳錨帶(一般最少4個)逐個進行拉拔試驗,試驗力大于等于錨帶最大設計應力值,用以檢驗錨帶埋于混凝土底板的連接強度。它是低溫平底儲罐與土建結構兩個專業之問的關鍵交接點,拉拔試驗用于驗證這個交接點是整個儲罐系統的最強部分。
第三,超壓安全控制回路的設計。超壓安全控制回路由壓力檢測、控制系統及執行閥門組成,按設定的安全邏輯進行控制動作,如報警、壓力高時關閉所有進液閥門、壓力低時關閉所有出液閥等。
(二)液體管道本質安全化
1. 液體管道失效機理
低溫平底儲罐內部管道失效除溫差引起的二次應力外,還有端點位移引起的二種失效模式:第一個是內容器壓力向上的抬升力超過管道與內容器連接處的許用應力;第二個絕熱夾層壓力使外容器產生向上的抬升力超過管道與外容器連接處的許用應力。這兩種情況可能的失效后果是內容器地腳變形或局部破裂、內容器或外容器與管道相對變形位移、管道局部破裂以及液體泄漏,如圖8所示。
低溫平底儲罐外部管道失效機理:柔性不夠,碳氫化合物積聚爆炸以及外部荷載沖撞或泵火災引起的多米諾效應。

2.本質安全化設計措施
合理的絕熱夾層內管線設計:管道布置自補償,不允許有位于夾層內的管道膨脹節。管道穿外容器 壁設計:從混凝土底板穿出,而一般不從外容器側壁穿出。如必須側壁穿出時需要特殊設計,從而避免外容器對管道的影響。液體抽出管安全設計:安裝自動切斷閥用以緊急切斷響應;配備用于維修的自動閥和位于上游的手動切斷閥;在靠近自動閥的高點設置氣封,用以改善維修閥門時的可靠性及安全性;液氧管道配置防碳氫化合物積聚的熱虹吸管;自動閥后管道加設大剛度的固定點;管道系統需要好的柔性。設置安全閥和翻板裝置作為夾層超壓安全保護裝置。
(三)相關危險防范措施
1. 溢流防范措施
(1)失效機理
如果沒有溢流保護系統或它不起作用,液體就可能到達內容器頂部,并且可能再上升到達安全閥底,導致罐頂向上抬升的靜壓很大,一般可以達到設計壓力的幾倍,而內容器罐頂的安全閥卻不會動 作,所以罐頂的安全閥不能作為溢流的防護措施(如圖9所示)

圖9 溢流危險
(2)本質安全化安全防護措施
配備實質物理上的真正溢流管,并且在溢流管上配置溢流安全閥,并且設置防溢流安全保護回路,它由兩個獨立的液位檢測、控制系統及執行閥門組成,按設定的安全邏輯進行控制動作。
2. 氣相超壓防范措施
(1)失效機理
氣相超壓可能發生在當蒸發和閃蒸的流量大于放空閥排放流量的時候。由于罐頂連接強度一般大于地腳錨帶,所以超壓主要影響內容器地腳系統。
(2)安全防護措施
如前所敘的合理內容器設計及合理的地腳系統設計,并且設置多層超壓安全控制及泄放裝置,它們分別是放空閥、安全閥和爆破片。配置壓力控制閥,至少2個安全閥,其設置應當保證儲罐運行中至少有1個安全閥作用,能排放100%的安全泄放流量,即使有一個發生故障或維修時也應當保證1個 安全閥工作。超壓安全控制回路按前所敘。
3. 地震防范措施
(1)失效機理
橫向地面運動引起筒體及液體諧振,有兩個主要破壞作用:水平荷載引起液體晃動;垂直荷載產生傾復力矩,液體晃動可能損壞頂蓋和頂部筒體。兩個作用均影響地腳系統,當然液位高時可能影響頂蓋。典型的地震破壞是筒壁屈曲,即所謂的“象腿”。
(2)安全防護措施
采用合理的基礎設計、混凝土底板設計及地腳系統設計,并采用高強度的絕熱泡沫玻璃磚;經有資質的土建工程師審批基礎設計及地震計算。
4. 其他失效模式防范措施
(1)頂部壓環破壞和頂部連接破裂
它的失效模式是突然氣體卸壓、氣體及珠光砂泄漏噴射,可能無液體泄漏。合理的內容器設計是其安全防護措施。
(2)負壓防范措施
真空負壓可能發生于:儲罐筒體冷卻太快或充裝過冷液體時;排液過快時;液壓試驗后排液沒有將放空閥或人孔打開時;排液時增壓系統有問題時;充裝時氣體冷凝時;裝填珠光砂時。合理的夾層保護設計和防真空安全裝置是其安全防護措施。
夾層保護設計:用干燥氮氣不斷充人夾層以驅趕潮氣及防止罐體最初冷卻時的真空。配備氣源調壓器及背壓調壓器,2個調節器可用二級壓力調節器替代,氣源調壓器信號由背壓調壓器反饋,用轉子流量計監測流量,以保證夾層空間壓力正常;安裝壓力變送器,當夾層空間超出壓力范圍時向操作員報警。
(3)溢流區及溢流監測
為保證不可避免的液體泄漏,如少量排液、充車管道等,應當設置溢流區,使低溫液體流向非敏感設備或區域,如電器儀表等區域。溢流區體積按安全等級設定為儲罐體積的百分比(最少5%)。溢流探測安全控制回路由低溫液體探測儀及溫度探測儀等組成。設置急停按鈕用于儲罐緊急安全隔離。
本文介紹探討了液空集團冷箱和平底罐本質安全化設計方法和經驗,希望能夠對行業安全做出相應的貢獻。空分設備作為鋼鐵,化工,煤化工或石油化工企業重要的公輔設施,它的長期可靠安全運行對于全企業的安全生產具有顯著影響。因此,在設計階段充分辨識各個工藝和設備中潛在的危險及其失效機理,針對性地采用風險控制手段,是實現空分本質安全化或更安全設計的關鍵或根本手段。
